Пневмосортировальный стол предназначен для очистки семян от трудноотделимых примесей, отличающихся от основной культуры удельным весом, формой и свойствами поверхности.
Сферы применения:
Обрабатываемые зерна практически одинакового размера непрерывно подаются из загрузочного лотка вибробункера на поверхность рабочей площадки (деки), тем самым обеспечивая ее полную загрузку. Наклон площадки регулируется в пределах рабочей амплитуды в продольном и поперечном направлениях. Поверхность рабочей зоны покрыта материалом, представляющим собой проволочную сетку или ткань, благодаря которой поток зерна расслаивается в соответствии с его удельным весом под давлением воздуха.
Возвратно-поступательное движение стола приводит к тому, что более тяжелые частицы переходят на более высокий уровень деки, а более легкие – на нижний. Поскольку гравитационный сепаратор чувствителен к незначительным различиям в весе материала, скорость подачи, интенсивность и частота наклонных колебаний площадки, а также давление воздуха изменяются бесступенчато.
Стол пневмосортировальный включает в себя следующие основные узлы:

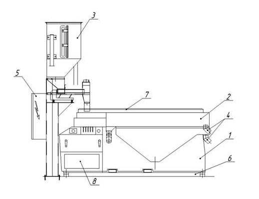
1 – корпус; 2 – стол сортировальный; 3 – вибропитатель; 4 – отводы продуктов; 5 – пульт управления; 6 – станина; 7 – крышка; 8 – фильтр.
Особенности конструкции:
Основные параметры и технические характеристики
|
Наименование
показателя |
Значение |
|
Номинальная производительность за 1 ч основного времени (при
очистке пшеницы влажностью 16 % с содержанием примесей 5 %, в том числе
сорной – 1 % после обработки на воздушно-решетных машинах и триерах), т |
10 |
|
Общая номинальная
мощность установленных электродвигателей, кВт в том числе: – номинальная
мощность электродвигателя вибратора стола, кВт, не более – номинальная
мощность электродвигателя привода вентилятор, кВт, не более |
12,1 1,1 11 |
Габаритные размеры,
мм: – длина – ширина – высота |
4 100 1 200 2 800 |
|
Масса, кг |
3 000 |
|
Частота вращения вала привода деки, мин-1 |
650±100 |
|
Амплитуда колебаний деки, мм |
14±3 |
|
Площадь деки, м2 |
3,0±0,2 |
|
Чистота, в
соответствии с требованиям действующих ТНПА, без учета сортовой чистоты,
категория семян, не менее: СТБ 1073-97 СТБ 1123-98 СТБ 1894-2008 СТБ 1896-2008 СТБ 1897-200 |
ЭС ЭС ЭС ЭС ЭС |
|
Количество
выделяемых фракций, шт. |
|
|
Полнота выделения
семян в основную фракцию, % |
98 |
|
Дробление семян, %, не более |
0,1 |
|
Подсор семян и отходов |
Не допускается |
© 2012 СП “Унибокс” ООО
Республика Беларусь, 220075, г. Минск, ул. Селицкого 9б